This striking chapel conversion is set within the heart of a highly sought-after village, which boasts an esteemed primary school. The five-bedroom, three-storey home - over 3,300 square feet in size - is both chic and characterful; while it offers contemporary amenities that are desirable for modern-day living, the residence also carries a plethora of timelessly elegant & contemporary details.
Lady of Lourdes
This striking chapel conversion is set within the heart of a highly sought-after village, which offers many crown jewels in the form of its local amenities, but arguably its most dazzling is the Church of England Primary School, which boasts 'Outstanding' and 'Good' Ofsted ratings.
The five-bedroom, three-storey home - over 3,300 square feet in size - is both chic and characterful; while it offers contemporary amenities that are desirable for modern-day living, the residence also carries a plethora of timelessly elegant details.
Location:
The desirable village of Whitchurch is found in the heart of the Wye Valley Area of Outstanding Natural Beauty. In recent years, Whitchurch CE (VA) Primary School was placed in the top 2% of schools nationally for the progress that children make in reading, writing and maths. The village also features a popular shop, Woods of Whitchurch, a stone's throw from Lady of Lourdes. This welcoming community shop also operates as a reputable coffee house and takeaway restaurant. There are several other hospitality venues in the village and a selection of reputable riverside pubs and restaurants are within walking distance in the spectacular setting of Symonds Yat - which is famed for its phenomenal river scenery, woodland expanses and limestone cliffs.
There are many magnificent walking routes and outdoor pursuits close by. In addition, the Biblins swing bridge, which crosses the Wye, leads to the Forest of Dean - giving access to thousands of acres of hikes through the wilderness.
The two popular market towns of Ross-on-Wye and Monmouth are also close by. These both offer highly regarded secondary schools, supermarkets, a variety of restaurants, pubs, leisure facilities and independently owned shops.
Whitchurch is also ideally placed for those requiring good transport links. The A40 is nearby, and the eastbound road provides a direct route to Gloucester, Cheltenham and the Cotswolds. Meanwhile, motorists heading in the opposite direction can journey towards the M4 at Newport, giving access to Cardiff and London. In addition, the M50 motorway begins in Ross-on-Wye around seven miles away and this gives good access to the M5 motorway - leading to Birmingham to the north and Bristol to the south.
The closest bus stop to Lady of Lourdes can be found outside Woods of Whitchurch approximately 40m away.
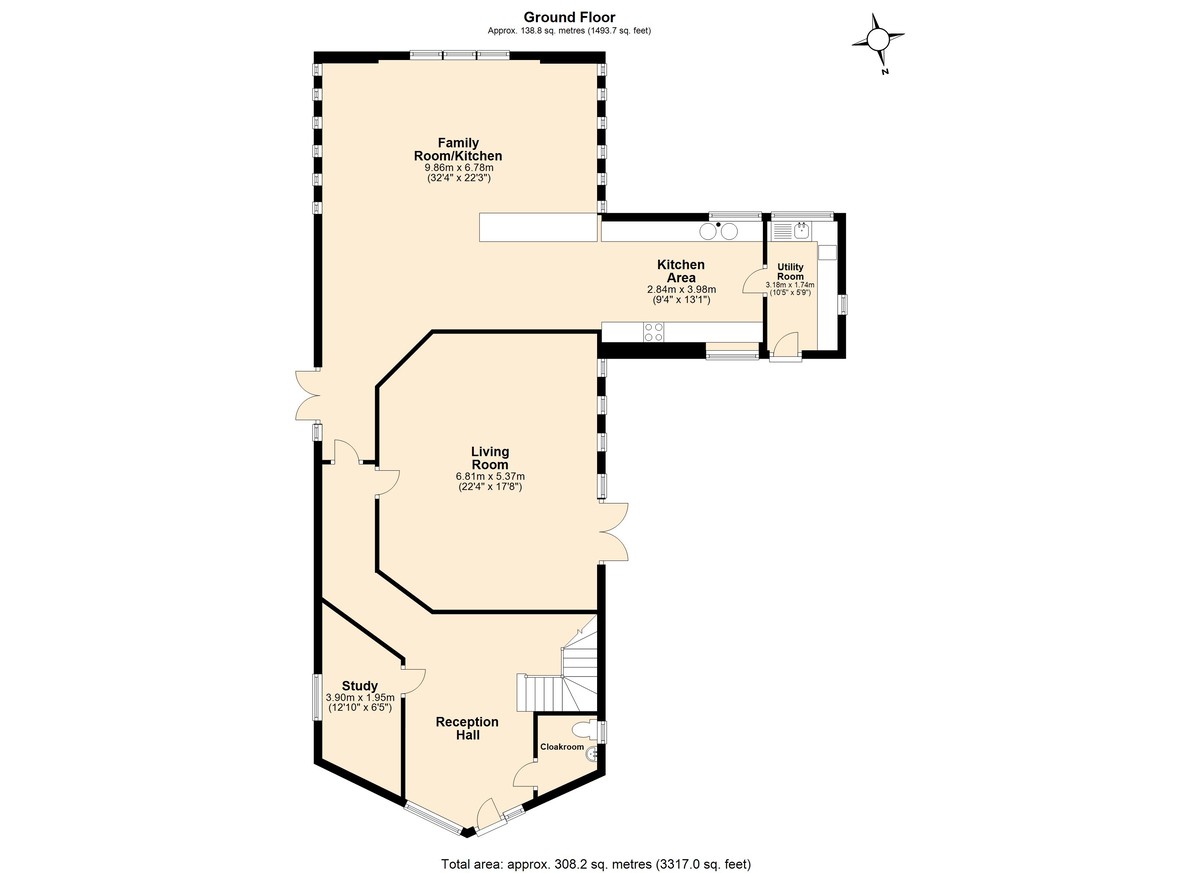
The home at a glance:
Lady of Lourdes is tucked away from the heart of the village behind a set of double gates, and the driveway offers space for around five vehicles. The home and its grounds - approximately one-quarter of an acre in size - are fully enclosed behind a stone wall and a closed-board fence, all of which help to create a sense of privacy. The main entrance leads into a spectacular reception hall which immediately sets an impressive scene. Plenty of light cascades in through a series of floor-to-ceiling windows, and the staircases leading to the first and second floors give an impression reminiscent of a labyrinth - adding a definite wow factor. A door to the left gives access to a reception room which would ideally serve as a study, snug or playroom. On the opposite side of the bright and airy reception hall, there is a cloakroom which includes a pedestal basin and a WC. A hallway, beginning in the left-hand corner, wraps around and extends towards the heart of the home. The first door - on the right-hand side - leads into an expansive sitting room. A series of slit windows, arch-shaped windows and patio doors capture a view over the garden and lead outside. Beyond the sitting room, there is a capacious open-plan living arrangement. Slit windows on either side of the formal dining area let sunshine pour in and more arch-shaped windows are positioned along the far end of the room. In terms of practicalities, the kitchen includes petrol-blue shaker-style units, including several glass-fronted doors, giving opportune spaces to display pretty crockery, particularly as these are equipped with plenty of internal lighting. There is an integrated under-counter fridge and a freezer, a double Stoves oven, a ceramic hob, an extractor fan, a double circular sink with mixer tap, a built-in wine rack and space and plumbing for a dishwasher. In addition, a breakfast bar offers an informal dining space and there is ample room for an American-style fridge/freezer.
The kitchen leads into the utility room, which is fitted with shaker units to match those in the kitchen, plus an additional sink and space and plumbing for both a washing machine and a tumble dryer. It is also worth noting that there is a roof hatch that gives access to the large attic.
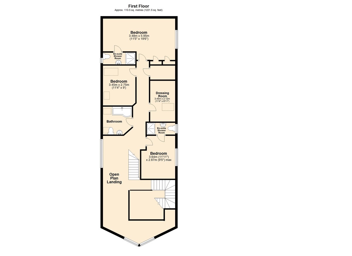
The staircase in the reception hall leads up to the first floor and its light-streamed galleried landing, which presently serves as a peaceful reading nook. Much like the reception hall below, this also features a series of full-height windows which capture an elevated view across the village and hillsides beyond. On this level of the home, there are three bedrooms, two of which boast en-suite shower rooms. Of these, one is used as the master bedroom owing to its substantial size and the fact that it also includes built-in wardrobes and cabinets.
The third bedroom is large enough to accommodate a double bed and includes Velux windows. On this floor, there is the potential for sixth bedroom. One of the rooms is fitted with built-in clothes racks and therefore is used as a walk-in wardrobe but if these were to be removed, there would be space for a single bed or scope for another home office.
Meanwhile, the family bathroom includes a p-shaped bath with shower overhead, a WC and pedestal basin.
On the top floor, all rooms carry splendid, vaulted ceilings. Like the floor below, the galleried landing-cum-snug has a configuration of full-height windows to let the sunlight and views flood in. There are two adjoining bedrooms on this level, although one may wish to instead establish an alternative master suite by adapting the closest bedroom to the landing into a dressing room.
Outside, the garden predominantly sits on the west-side of the home. There is a large sun terrace, which offers an ideal spot for an outdoor living room or alfresco dining space. From here, a staircase leads up to a level lawn.
General Services:
Underfloor heating to all three floors (oil-fired). Each room with individual temperature controls. Mains water, electricity and drainage. Telephone line and broadband.
Local authority
Herefordshire Council. Tax band G.
Tenure Freehold
Directions:
From Whitchurch, pass Woods of Whitchurch on the left-hand side, then turn left into Lady of Lourdes.
What3Words: foresight.installs.waltzes
Distances:
Monmouth 5 miles • Ross-on-Wye 7 miles • Hereford 19 miles • Gloucester 25 miles • Cheltenham 32 miles • Bristol 50 miles •
Read less