This Dutch barn, which has planning permission for division and conversion into a four-bed country home, boasts circa 1.5 acres of garden. The unconverted barn is set in a tranquil corner of the south Herefordshire countryside, approximately a mile-walk from a picturesque and idyllic village.
The Dutch Barn 1
This Dutch barn, which has planning permission for division and conversion into a four-bed country home, boasts circa 1.5 acres of garden.
The unconverted barn is set in a remote corner of the south Herefordshire countryside, in a setting that is unspoiled by any sound - except a delightful variety of birdsong, the gush of a nearby stream and a tranquil bubbling brook.
A mountain range offers a spectacular backdrop beyond the peaceful garden. It is also worth noting that there is a picturesque and idyllic village around one mile away by foot.
Location
The nearest village of Longtown is set within the Olchon Valley, Herefordshire's best-kept secret. This scenic and diverse valley is enveloped by the Black Mountains of south Wales and boasts stunning views and rich wildlife.
The village is well-appointed; there is a family-run country inn, an award-winning independent village shop and post office, a village hall, an art studio and a primary school that is graded 'Good' by Ofsted. There is also a 12th-century castle, clearly visible from the country lane leading to the plot.
From the property, there is a scenic stroll into the heart of Longtown. It is also worth noting that the Offa's Dyke footpath - a walking trail that spans 177 miles along the English-Welsh border and passes through diverse landscapes - runs close to Longtown and therefore the hike is easily accessible.
The plot at a glance
Herefordshire Council granted planning permission in December 2024 (reference 242765) to convert a large Dutch barn into two properties. By removing the central section of roof, this creates two fully detached properties.
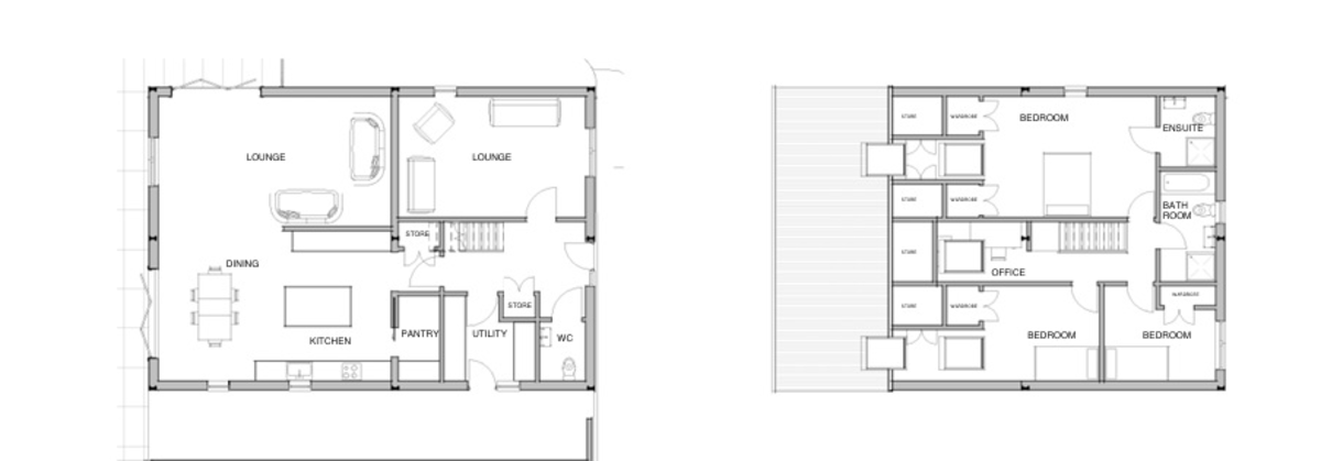
This particular property would be approximately 180 square metres in size.
It would carry four bedrooms, and the master bedroom would also have an en-suite shower room. There would also be an open-plan living arrangement, a family bathroom, a utility room, a cloakroom and a first-floor home office.
In terms of outside space, this home would boast approximately 1.5 acres of garden.
General
Directions
Beginning at Longtown Village Hall, turn right and, after 440m, at the junction, turn left towards The Crown Inn, then turn left again. Pass Hopes Village Shop on the right-hand side of the road, exit the village and keep to the single-lane county road for around 270m. After the hump-back bridge over a stream, take the right-hand turning towards Ewyas Harold and stay on this road for approximately one kilometre, before taking the right-hand turning onto a track, denoted as Brook Farm. Keep to this road for around one kilometre and the threshing barn will be found on the left-hand side.
What3Words: importing.private.kindness
Longtown 1 mile • Abergavenny 10 miles •
Hay on Wye 14 miles • Hereford 17 miles • Monmouth 19 miles • Ross-on-Wye 22 miles •
Agent's note: The acreage would need to be verified by your solicitor.
* The several images in this catalogue have been computer-generated to give an impression of how the finished barn would look.
Read less