This development plot, measuring approximately half an acre, has planning permission for seven houses, each with its own garden and off-road parking. There would be two pairs of semi-detached properties and a terrace of three homes, all set within a well-appointed village in the Forest of Dean.
Location
Ruspidge lies on the eastern fringe of the Royal Forest of Dean - a place of timeless beauty and untamed nature. These woodlands offer 24,000 acres of magnificent countryside, award-winning picnic sites, family cycle routes and gorgeous walks, as well as a huge selection of outdoor pursuits.
The village of Ruspidge offers a convenience store, a recreation ground, and a public house - The New Inn. The nearby town of Cinderford, approximately one mile away, gives a wealth of amenities such as three primary schools, a high school, a college, plus various supermarkets, shops, public houses, leisure facilities and the Forest of Dean Community Hospital.
The Plans at a Glance
The properties would be a mixture of 2x two-bedroom homes and 5x three-bedroom homes, all of which would boast delightful views over the surrounding wooded hills.
Presently, the plot is surrounded by a large stone wall, affording privacy and securty. Once constructed, the semi-detached properties would all have three-bedrooms and be set on three levels; the ground floor would accommodate an entrance hall, cloakroom, kitchen and the master bedroom with an en-suite shower room. The lower ground floor would feature a sitting room. The top floor would house two additional double bedrooms and a family bathroom.
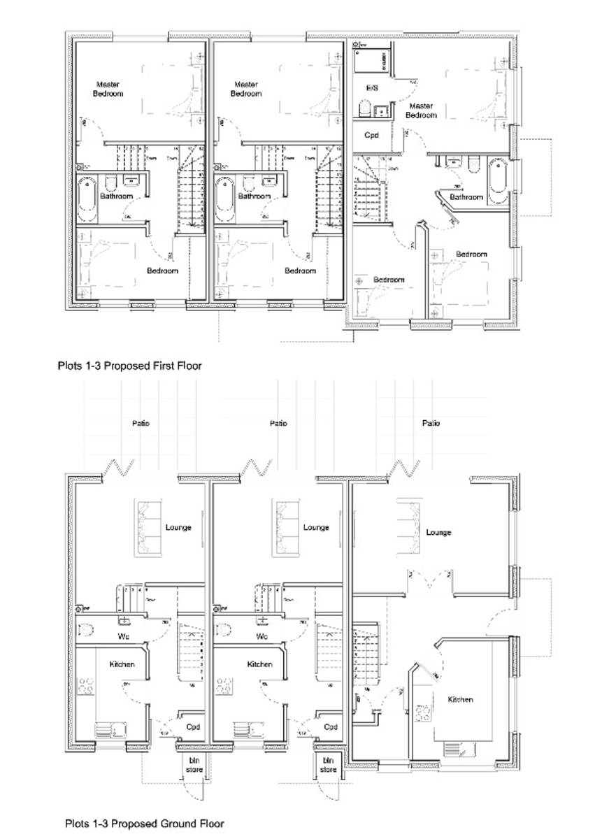
The terraced properties would be arranged over two storeys; two would be two-bedroom properties, and the largest end-terrace home would have three bedrooms. Of the two-bedroom houses, each would have a ground floor complete with a reception hall, a cloakroom, a kitchen and a sitting room. The top floor would include two double bedrooms plus a family bathroom. The three-bedroom property, meanwhile, would have a ground floor with a reception hall, a built-in cupboard, a kitchen and a sitting room. The top floor would feature a master bedroom with an en-suite shower room, two additional double bedrooms, and a family bathroom.
All homes would have access to a mains gas, electricity, water and drainage supply. There would also be fibre broadband (FTTC) and telephone line availability. There would, however, be the potential to upgrade the internet to a high-speed fibre direct to the premises (FTTP) service, as this has been done at the neighbouring property, Forest Lodge.
The entrance into the development would be from Buckshaft Road, but there would be another private road leading to the three rear properties.
The Planning Inspectorate granted permission for the development (AP0045/24/REF) on August 27 2025, upon an appeal.
Read less